Over the past few weeks, we’ve been getting our ducks in a row to break ground on our next building. The barn will be close to Big Ridge Road, immediately downhill from the entrance.
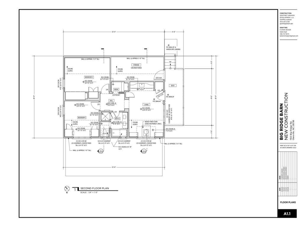
Upstairs, we’ll be taking a lot of queues from the Spring House. Imagine a two-bedroom loft apartment that is similar to the Garden Level, but rather than being on the ground floor with a close view of the woods, it’s upstairs with a long, south-facing view of the pasture. The living room will have a kitchenette and a wood stove that’s a bit larger than the one in the Writer’s Hut (and has a stovetop and a small oven). The main bedroom will have a queen bed and a long view of the pasture. The second bedroom will have a westward view and two single beds plus a small-single bed-nook (like those in the two master bedrooms of the Spring House and in the Writer’s Hut). Off of the center hall will be a wee office and across from that, a bathroom with both a shower and a soaking tub (the soaking tub was a request from one of our first members).
The main floor will mostly be a wide open utility room for workshop-type stuff and the new location of the Big Ridge Barbell Club. It will also have a bathroom and a full-sized washer/dryer.
When we finish the barn, the entire property will have seven bedrooms, twelve beds, five bathrooms, and capacity for 15 people (assuming two in each of the three master beds). We’ll also be able to graciously accommodate two groups at the same time.
Once we get more certain about a completion date, we’ll add the barn loft to BBRRP™, and our members will be able to begin reserving dates.
In addition to meaningfully expanding our lodging capacity, the barn will give us a great staging area for our various agriculture ambitions and also provide a material staging area for future construction of the main lodge building. It would have been nice to have built this structure first—it certainly would have made construction of the Spring House a lot easier—but hey, you live and learn.
There are many cool barns in the area. If you haven’t yet driven to the top of Big Ridge Road, head up there and you’ll see some great ones. I also recommend the barn viewing up on Breedlove Road toward Panthertown’s Mac’s Gap trailhead and on Walnut Creek Road toward Franklin. Some cool barn pics here.
Here are a few excerpts from the permit set.


Posted on February 16, 2024 by Geoff Graham